Embrace a lifestyle of effortless entertaining and comfort in a home designed to seamlessly blend indoor and outdoor living. With versatile spaces that cater to both relaxation and social gatherings, this home offers the perfect environment for hosting friends, enjoying family time, and creating lasting memories.
Host family and friends in a private guest suite featuring an ensuite and walk-in robe, while your family enjoys generously sized bedrooms, each with a walk-in robe and adjoining ensuite. Delight in entertaining with a gourmet kitchen that overlooks the open-plan living/dining and alfresco, all effortlessly flowing into an outdoor kitchen and serene backyard retreat.
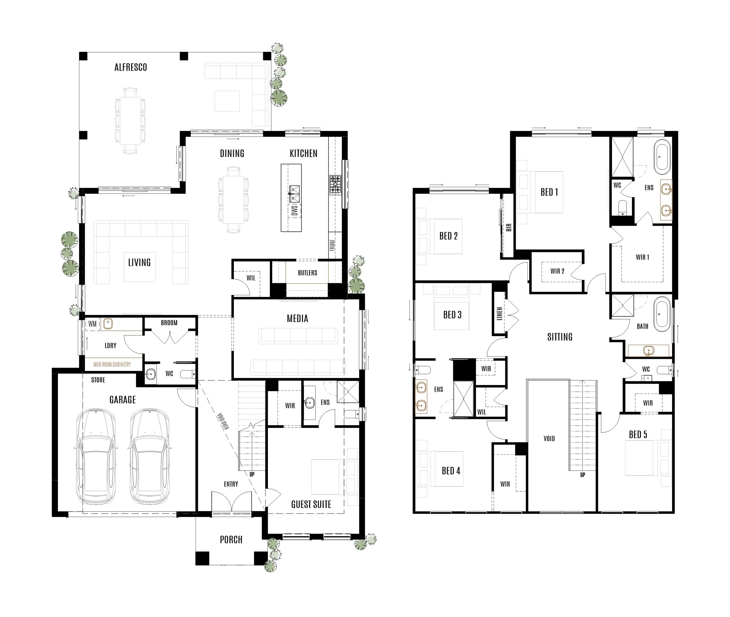
Key Features
| BEDS | — 6 |
| BATHS | — 5 |
| CARS | — 3 |
| LAND | — 500m2 |
| House Size | |
| Total Area | — 500m2 |
| House length | — 21.75m |
| House width | — 17.53m |
| Block width | — 20.5m |
| Room Size | |
| Living | — 5.63 × 4.22m |
| Dining | — 4.09 × 5.55m |
| Kitchen | — 3.4 × 5.5m |
| Media room | — 5.65 × 3.9m |
| Guest Suite | — 4.15 × 4.36m |
| Alfresco | — 10.22 × 6.52m |
| Garage | — 9.1 × 6.15m |
| Master bedroom | — 4.66 × 4.95m |
| Balcony | — 4.82 × 2.78m |
| Bedroom 2 | — 3.47 × 3.9m |
| Bedroom 3 | — 3.85 × 3.35m |
| Bedroom 4 | — 3.84 × 3.33m |
| Bedroom 5 | — 3.34 × 4.67m |
| Sitting | — 5.31 × 3.31m |


| BEDS | — 6 |
| BATHS | — 4 |
| CARS | — 2 |
| LAND | — 445m2 |
| House Size | |
| Total Area | — 445m2 |
| House length | — 22.71m |
| House width | — 13.85m |
| Block width | — 16.8m |
| Room Size | |
| Living | — 5.01 × 5.39m |
| Dining | — 4.24 × 5.42m |
| Kitchen | — 2.7 × 5.42m |
| Media room | — 5.57 × 3.5m |
| Guest Suite | — 4.07 × 4.71m |
| Alfresco | — 8.5 × 6.02m |
| Garage | — 6.12 × 5.52m |
| Master bedroom | — 4.15 × 5.01m |
| Bedroom 2 | — 3.78 × 3.86m |
| Bedroom 3 | — 3.41 × 3.35m |
| Bedroom 4 | — 3.4 × 4.1m |
| Bedroom 5 | — 3.3 × 4.31m |
| Sitting | — 4.52 × 3.82m |



Begin your custom home journey today by calling 1300 30 11 38 or contacting us online below.